|
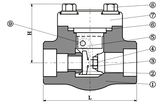
鍛鋼旋啟式止回閥800LB、900LB~1500LB 标準材質明細表 | 序号 | 零件名稱 | CStoASTM | AStoASTM | SStoASTM | | A105 | F22 | F304(L) | F316(L) | | 1 | 閥體 | A105 | A182F22 | A182F304(L) | A182F316(L) | | 2 | 閥座 | A276410 | A276304 | A276F304(L) | A276F316(L) | | 3 | 閥瓣 | A276420 | A276304 | A276F304(L) | A27F316(L) | | 4 | 螺母 | A1942H | A1944 | A1948 | A1948M | | 5 | 搖杆 | A105 | A182F22 | A182F304(L) | A182F316(L) | | 6 | 墊片 | 316夾柔性石墨 | 316夾PTFE | | 7 | 閥蓋 | A105 | A182F22 | A182F304(L) | A182 F316(L) | | 8 | 螺栓 | A193B7 | A193B16 | A193B8(M) | A193B8(M) | | 9 | 銷釘 | a276420 | A182F304 | A182F316 | | 适用介質 | 水、蒸汽、油品等 | 水、蒸汽、油品等 | 硝酸、醋酸等 | | 适用溫度 | —29℃~425℃ | —29℃~550℃ | —29℃~200℃ |
注意:客戶需求的其他材質也可采用。密封面材料…配對由🙉客戶指定内件代号決定。 CS=碳鋼;AS=合金鋼;SS=不鏽鋼; 尺寸(MM)和重量(KG) | NPS | 3/8” | 1/2” | 3/4” | 1” | 11/4" | 11/2" | 2" | | L | 800LB | 79 | 79 | 92 | 111 | 120 | 120 | 140 | | 900LB~1500LB | 92 | 111 | 111 | 120 | 120 | 140 | 178 | | W | 800LB | 61 | 61 | 78 | 84 | 101 | 120 | 133 | | 900LB~1500LB | 79 | 79 | 79 | 97 | 105 | 120 | 140 | | 重量 | 800LB | 1.1 | 1.0 | 1.9 | 3.9 | 4.5 | 7.3 | 10.0 | | 900LB~1500LB | 3.1 | 3.0 | 3.6 | 4.3 | 6.1 | 8.8 | 12.6 |
|